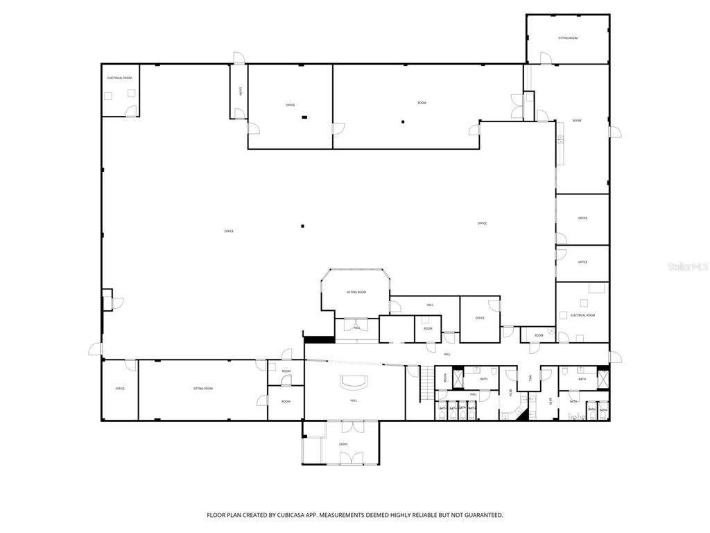
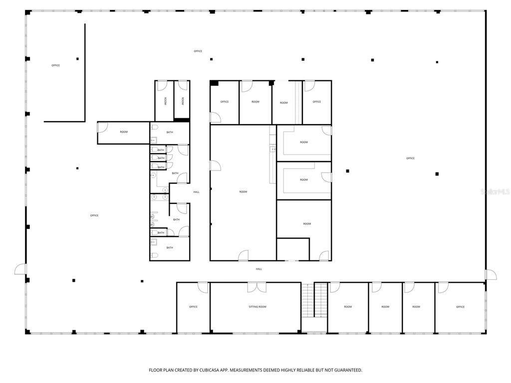
Description
Well-positioned in Jacksonville's Southside, this two-story 29,455 SF office building is situated on 1.6 acres with 72 parking spaces, plus an additional 2-acre parcel providing approximately 136 more spaces. Fully built out for call center or government use, the layout features a high-capacity open floor plan with multiple private offices, large training and conference rooms, dedicated IT spaces, and break areas designed for workforce efficiency. The property offers dual entry points off Sunbeam Center Drive and Hood Road with excellent visibility and signage opportunities from Sunbeam Road. Convenient access to US-1 and I-95 ensures strong regional connectivity for employees and visitors. Existing infrastructure includes extensive data cabling, power distribution, fiber connectivity, two 250 KW generators, and a 50 KW UPS system, providing robust support for technology-driven operations. Modern and well-maintained, this building offers flexible options for single or multi-tenant occupancy and is ideally suited for call centers, government service agencies, or other large office users seeking a ready-to-occupy solution.
-
0BEDS
-
1.6ACRES
-
0BATHS
-
01/2 BATHS
School Ratings & Info
Description
Well-positioned in Jacksonville's Southside, this two-story 29,455 SF office building is situated on 1.6 acres with 72 parking spaces, plus an additional 2-acre parcel providing approximately 136 more spaces. Fully built out for call center or government use, the layout features a high-capacity open floor plan with multiple private offices, large training and conference rooms, dedicated IT spaces, and break areas designed for workforce efficiency. The property offers dual entry points off Sunbeam Center Drive and Hood Road with excellent visibility and signage opportunities from Sunbeam Road. Convenient access to US-1 and I-95 ensures strong regional connectivity for employees and visitors. Existing infrastructure includes extensive data cabling, power distribution, fiber connectivity, two 250 KW generators, and a 50 KW UPS system, providing robust support for technology-driven operations. Modern and well-maintained, this building offers flexible options for single or multi-tenant occupancy and is ideally suited for call centers, government service agencies, or other large office users seeking a ready-to-occupy solution.
© 2025 My Florida Regional MLS DBA Stellar MLS. All rights reserved. All listings displayed pursuant to IDX. All listing information is deemed reliable but not guaranteed and should be independently verified through personal inspection by appropriate professionals. Listings displayed on this website may be subject to prior sale or removal from sale; availability of any listing should always be independently verified. Listing information is provided for consumers personal, non-commercial use, solely to identify potential properties for potential purchase; all other use is strictly prohibited and may violate relevant federal and state law. Data last updated 2025-11-12T18:51:02.95.
