Description
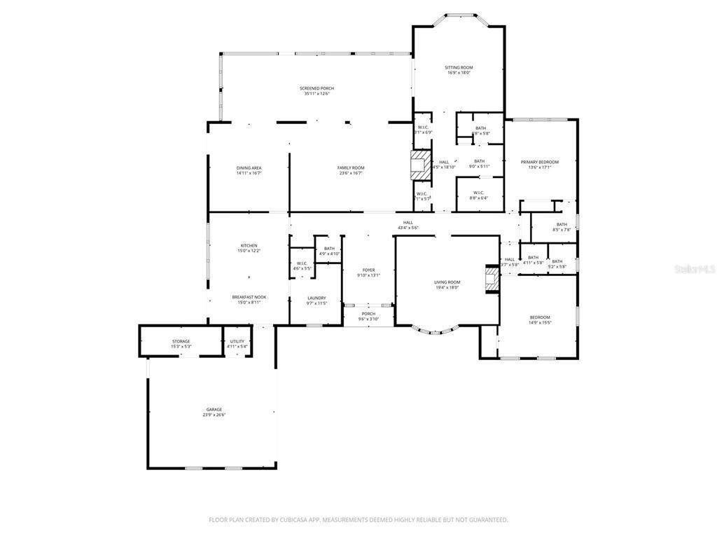
One or more photo(s) has been virtually staged. Welcome to 6307 SW 35th Way in Gainesville, Florida, a remarkable 3-bedroom, 3.5-bath, 3,812-square-foot single-story residence located in Country Club Estates community. Designed with timeless elegance and exceptional craftsmanship, this traditional estate-style home must be experienced in person, as photos do not fully capture its scale, quality, or architectural detail. The HOA is optional. Upon entry, a breathtaking grand foyer welcomes you with custom Italian tile flooring, wainscoting, and crown molding—classic design elements that continue throughout the home. The interior features three generously sized en-suite bedrooms, each with remodeled bathrooms showcasing granite, marble, and custom tile finishes. The formal living room and formal dining room are ideal for entertaining and both feature wood-burning fireplaces, while the stately library/den offers extensive built-in shelving and an additional fireplace, creating warm and inviting gathering spaces throughout the home. The eat-in kitchen is both functional and welcoming, offering granite countertops, built-in shelving, and ample storage. A large laundry room provides a second oversized pantry, adding even more convenience. One of the standout spaces is the bright and expansive Florida room, where you can enjoy breakfast while overlooking the former 12th fairway, enhanced by built-in stereo speakers. Storage is abundant throughout the home, including a dedicated storage room in the garage and additional attic storage. The primary suite serves as a private retreat, featuring a massive walk-in closet with a hidden closet inside, additional closets, extensive built-in dresser cabinetry, and access to outdoor living areas. Recent interior improvements include new flooring in the laundry room and bedroom areas, new toilets, and fresh interior and exterior paint, ensuring a move-in-ready experience. Outside, the property impresses with a circular paver driveway, a side-entry garage, and beautifully landscaped grounds highlighted by mature Maple, Pecan, and Crepe Myrtle trees. A fenced private garden and a separate enclosed dog garden enhance the outdoor living experience, while the large sunroom faces the former golf course, providing a tranquil backdrop. This home has been meticulously maintained and significantly upgraded, including three new HVAC systems installed in 2025, a Generac whole-house generator with an underground propane tank capable of powering the home for up to ten days, new electrical panels inside the garage and outside dedicated to the generator and wired for a hot tub, and a new garage door installed in 2020. Within the last two years, major systems and appliances have been replaced, including the dishwasher, refrigerator, disposal, washer/dryer all-in-one, water heater, and a water purification system with reverse osmosis. Ideally located near I-75 and just minutes from the University of Florida, Shands Hospital, North Florida Regional Medical Center, and the VA, this property offers a rare combination of luxury, and convenience. For buyers searching for a high-end home for sale in Gainesville, Florida with golf course views, extensive upgrades, and classic architectural appeal, this residence is truly a must-see. Seller’s current mortgage may be assumable at a very low interest rate for qualified buyers, subject to lender approval and assumption requirements. Terms, eligibility, and buyer qualification to be verified with the loan servicer.
-
3BEDS
-
0.43ACRES
-
3BATHS
-
11/2 BATHS
-
3,812SQFT
-
$170$/SQFT
School Information
Description
One or more photo(s) has been virtually staged. Welcome to 6307 SW 35th Way in Gainesville, Florida, a remarkable 3-bedroom, 3.5-bath, 3,812-square-foot single-story residence located in Country Club Estates community. Designed with timeless elegance and exceptional craftsmanship, this traditional estate-style home must be experienced in person, as photos do not fully capture its scale, quality, or architectural detail. The HOA is optional. Upon entry, a breathtaking grand foyer welcomes you with custom Italian tile flooring, wainscoting, and crown molding—classic design elements that continue throughout the home. The interior features three generously sized en-suite bedrooms, each with remodeled bathrooms showcasing granite, marble, and custom tile finishes. The formal living room and formal dining room are ideal for entertaining and both feature wood-burning fireplaces, while the stately library/den offers extensive built-in shelving and an additional fireplace, creating warm and inviting gathering spaces throughout the home. The eat-in kitchen is both functional and welcoming, offering granite countertops, built-in shelving, and ample storage. A large laundry room provides a second oversized pantry, adding even more convenience. One of the standout spaces is the bright and expansive Florida room, where you can enjoy breakfast while overlooking the former 12th fairway, enhanced by built-in stereo speakers. Storage is abundant throughout the home, including a dedicated storage room in the garage and additional attic storage. The primary suite serves as a private retreat, featuring a massive walk-in closet with a hidden closet inside, additional closets, extensive built-in dresser cabinetry, and access to outdoor living areas. Recent interior improvements include new flooring in the laundry room and bedroom areas, new toilets, and fresh interior and exterior paint, ensuring a move-in-ready experience. Outside, the property impresses with a circular paver driveway, a side-entry garage, and beautifully landscaped grounds highlighted by mature Maple, Pecan, and Crepe Myrtle trees. A fenced private garden and a separate enclosed dog garden enhance the outdoor living experience, while the large sunroom faces the former golf course, providing a tranquil backdrop. This home has been meticulously maintained and significantly upgraded, including three new HVAC systems installed in 2025, a Generac whole-house generator with an underground propane tank capable of powering the home for up to ten days, new electrical panels inside the garage and outside dedicated to the generator and wired for a hot tub, and a new garage door installed in 2020. Within the last two years, major systems and appliances have been replaced, including the dishwasher, refrigerator, disposal, washer/dryer all-in-one, water heater, and a water purification system with reverse osmosis. Ideally located near I-75 and just minutes from the University of Florida, Shands Hospital, North Florida Regional Medical Center, and the VA, this property offers a rare combination of luxury, and convenience. For buyers searching for a high-end home for sale in Gainesville, Florida with golf course views, extensive upgrades, and classic architectural appeal, this residence is truly a must-see. Seller’s current mortgage may be assumable at a very low interest rate for qualified buyers, subject to lender approval and assumption requirements. Terms, eligibility, and buyer qualification to be verified with the loan servicer.
© 2026 My Florida Regional MLS DBA Stellar MLS. All rights reserved. All listings displayed pursuant to IDX. All listing information is deemed reliable but not guaranteed and should be independently verified through personal inspection by appropriate professionals. Listings displayed on this website may be subject to prior sale or removal from sale; availability of any listing should always be independently verified. Listing information is provided for consumers personal, non-commercial use, solely to identify potential properties for potential purchase; all other use is strictly prohibited and may violate relevant federal and state law. Data last updated 2026-03-06T23:45:28.32.
