Description
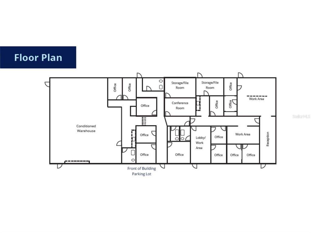
This 7,500 SF Industrial/Flex/Office property sits on a 0.73-acre lot and offers a versatile layout with 5,850 SF of professional office space and 1,650SF of fully conditioned warehouse. Conveniently located on NW 97th Boulevard, the property offers seamless access to I-75 and is just 0.1 mile from NW 39th Avenue, one of Gainesville's main east-west arteries. Zoned BW (Wholesale & Warehousing). Looking for a rare opportunity to own a flex/office building with warehouse space in Gainesville? This is it. This 7,500 SF Industrial/Flex/Office property sits on a 0.73-acre lot and offers a versatile layout with 5,850 SF of professional office space and 1,650 SF of fully conditioned warehouse. Conveniently located on NW 97th Blvd., the property offers seamless access to I-75 and is just 0.1 mile from NW 39th Avenue, one of Gainesville's main east-west arteries. Zoned BW (Wholesale & Warehousing), the building is ideal for businesses with industrial or professional service needs. The building is in excellent condition, featuring crisp white exterior walls, a blue metal roof, and a newly pressure-washed concrete parking area. Ample on-site parking provides added convenience for employees and visitors. Property Highlights Convenient location with direct access to I-75 Conditioned warehouse space with garage door and pedestrian doors Four ADA restrooms, including one with a shower 0.1 mile to NW 39th Avenue 0.3 miles to I-75 Located in an industrial park in the SW quadrant of I-75 & NW 39th Ave Ample parking for staff and clients Building can be divided into multiple suites Zoned BW (Wholesale & Warehousing)
-
0BEDS
-
0.73ACRES
-
0BATHS
-
01/2 BATHS
-
7,500SQFT
-
$213$/SQFT
School Ratings & Info
Description
This 7,500 SF Industrial/Flex/Office property sits on a 0.73-acre lot and offers a versatile layout with 5,850 SF of professional office space and 1,650SF of fully conditioned warehouse. Conveniently located on NW 97th Boulevard, the property offers seamless access to I-75 and is just 0.1 mile from NW 39th Avenue, one of Gainesville's main east-west arteries. Zoned BW (Wholesale & Warehousing). Looking for a rare opportunity to own a flex/office building with warehouse space in Gainesville? This is it. This 7,500 SF Industrial/Flex/Office property sits on a 0.73-acre lot and offers a versatile layout with 5,850 SF of professional office space and 1,650 SF of fully conditioned warehouse. Conveniently located on NW 97th Blvd., the property offers seamless access to I-75 and is just 0.1 mile from NW 39th Avenue, one of Gainesville's main east-west arteries. Zoned BW (Wholesale & Warehousing), the building is ideal for businesses with industrial or professional service needs. The building is in excellent condition, featuring crisp white exterior walls, a blue metal roof, and a newly pressure-washed concrete parking area. Ample on-site parking provides added convenience for employees and visitors. Property Highlights Convenient location with direct access to I-75 Conditioned warehouse space with garage door and pedestrian doors Four ADA restrooms, including one with a shower 0.1 mile to NW 39th Avenue 0.3 miles to I-75 Located in an industrial park in the SW quadrant of I-75 & NW 39th Ave Ample parking for staff and clients Building can be divided into multiple suites Zoned BW (Wholesale & Warehousing)
© 2025 My Florida Regional MLS DBA Stellar MLS. All rights reserved. All listings displayed pursuant to IDX. All listing information is deemed reliable but not guaranteed and should be independently verified through personal inspection by appropriate professionals. Listings displayed on this website may be subject to prior sale or removal from sale; availability of any listing should always be independently verified. Listing information is provided for consumers personal, non-commercial use, solely to identify potential properties for potential purchase; all other use is strictly prohibited and may violate relevant federal and state law. Data last updated 2025-12-15T13:45:58.39.
