Description
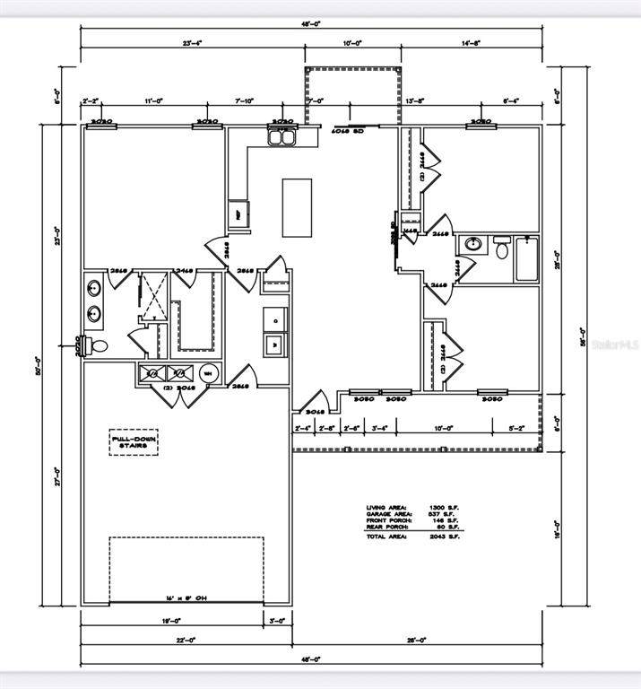
Under Construction. NEW CONSTRUCTION to be completed the end of March 2026. This beautifully designed 3-bedroom, 2-bath home offers both style and function in a serene Fort White setting. Featuring an open-concept floor plan, the main living areas are finished with durable and stylish luxury vinyl plank flooring, creating a seamless and inviting space for everyday living and entertaining. The open concept floor plan brings everything and everyone together. Enjoy this beautiful kitchen featuring granite counters, stainless steel appliances and solid wood cabinets with soft close doors and drawers along with an island providing additional space for entertaining. The spacious primary suite is a true retreat, complete with a large walk-in closet, and a spa-inspired ensuite bath featuring a tiled walk-in shower and dual vanities. The two additional bedrooms are located on the opposite side of the home and share a well-appointed bathroom with a stylish tiled shower. A centrally located laundry room between the kitchen and 2-car garage adds convenience, and the back porch provides the perfect spot for outdoor entertaining or quiet mornings surrounded by nature. Located in the sought after community of Fort White Station on just a half an acre, this home is just minutes from Downtown High Springs with the benefit of Columbia County taxes! Whether you're seeking a peaceful primary residence or a weekend escape near Florida's springs and rivers, this thoughtfully built home delivers comfort, quality, and timeless appeal. Just 25 minutes to Gainesville and 20 minutes to Lake City, this is the perfect retreat from everyday work life to the country.
-
3BEDS
-
0.5ACRES
-
2BATHS
-
01/2 BATHS
-
1,300SQFT
-
$261$/SQFT
School Information
Description
Under Construction. NEW CONSTRUCTION to be completed the end of March 2026. This beautifully designed 3-bedroom, 2-bath home offers both style and function in a serene Fort White setting. Featuring an open-concept floor plan, the main living areas are finished with durable and stylish luxury vinyl plank flooring, creating a seamless and inviting space for everyday living and entertaining. The open concept floor plan brings everything and everyone together. Enjoy this beautiful kitchen featuring granite counters, stainless steel appliances and solid wood cabinets with soft close doors and drawers along with an island providing additional space for entertaining. The spacious primary suite is a true retreat, complete with a large walk-in closet, and a spa-inspired ensuite bath featuring a tiled walk-in shower and dual vanities. The two additional bedrooms are located on the opposite side of the home and share a well-appointed bathroom with a stylish tiled shower. A centrally located laundry room between the kitchen and 2-car garage adds convenience, and the back porch provides the perfect spot for outdoor entertaining or quiet mornings surrounded by nature. Located in the sought after community of Fort White Station on just a half an acre, this home is just minutes from Downtown High Springs with the benefit of Columbia County taxes! Whether you're seeking a peaceful primary residence or a weekend escape near Florida's springs and rivers, this thoughtfully built home delivers comfort, quality, and timeless appeal. Just 25 minutes to Gainesville and 20 minutes to Lake City, this is the perfect retreat from everyday work life to the country.
© 2026 My Florida Regional MLS DBA Stellar MLS. All rights reserved. All listings displayed pursuant to IDX. All listing information is deemed reliable but not guaranteed and should be independently verified through personal inspection by appropriate professionals. Listings displayed on this website may be subject to prior sale or removal from sale; availability of any listing should always be independently verified. Listing information is provided for consumers personal, non-commercial use, solely to identify potential properties for potential purchase; all other use is strictly prohibited and may violate relevant federal and state law. Data last updated 2026-03-06T23:45:28.32.
